Ceray Arkeoloji Mimarlık Mühendislik İnşaat Bilgisayar San. ve Tic.Ltd.Şti

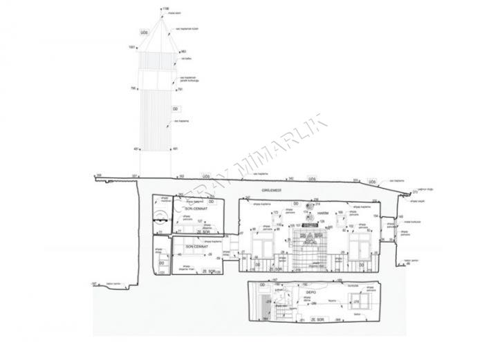
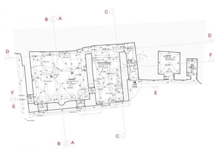
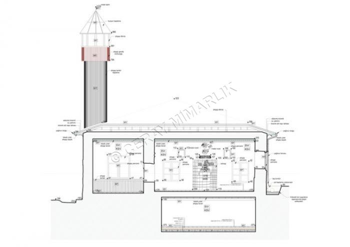
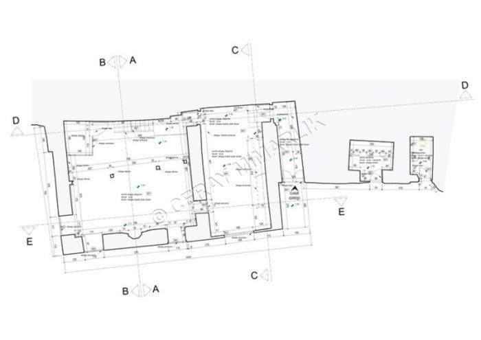
Karaman Ermenek Akça Mescid

Karaman Ermenek Akça Mescid

Karaman Ermenek 553 Ada 1 Parsel Akça Mescid Rölöve-Restitüsyon-Restorasyon-Elektrik projeleri ile Statik Raporunun hazirlanmasi  işi.

Projeler tamamlandı, İlgili Koruma Kurulundan onay alındı.